• PROJEKTAI
  • PASLAUGOS
  • MES
  • DRAUGAI
  • PASIEKIMAI
  • KONTAKTAI
logo
  • PROJEKTAI
  • PASLAUGOS
  • MES
  • DRAUGAI
  • PASIEKIMAI
  • KONTAKTAI

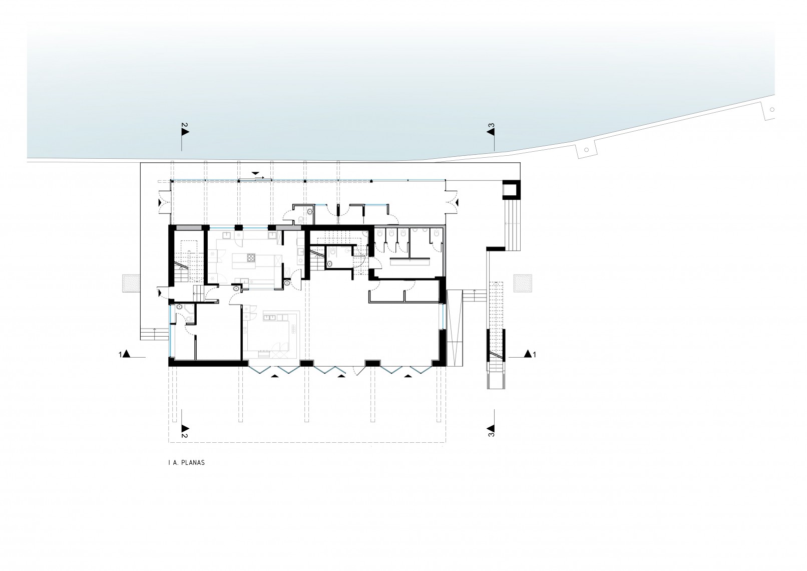
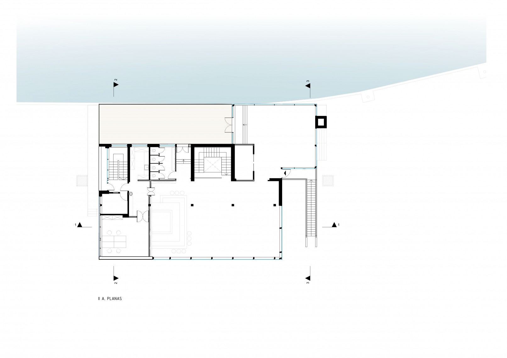
Nidos prieplauka

Architektai:
A. Šablevičius, G. Vieversys, E. Buikaitė.

Metai:
Projektavimas 2017
Rekonstrukcija 2019

Plotas:
570 m2

Vieta:
Naglių g. 16, Neringa

Tipas:
Realizacija

Užsakovas:
UAB “Fatalitas”

Konstruktorius:
Edmundas Petrikaitis

Fotografas:
Arimantas Knašas

 

20
img-4847
img-4839
img-4848
img-4840
img-4854
img-4841
img-4857
img-4859
img-4855
img-4863
img-4851
img-4843
img-4868
img-4869
Previous project
Next project