POILSIS GARAŽE

Architektai:
Adomas Šablevičius, Eglė Buikaitė, Eglė Žemaitytė

Metai:
Projektavimas 2018
Realizacija 2023

Plotas:
81,27 m2

Vieta:
Neringa

Tipas:
Realizacija

Užsakovas:
Privatus asmuo

 

Fotografija:
Rudolfas Levulis

Apie projektą:
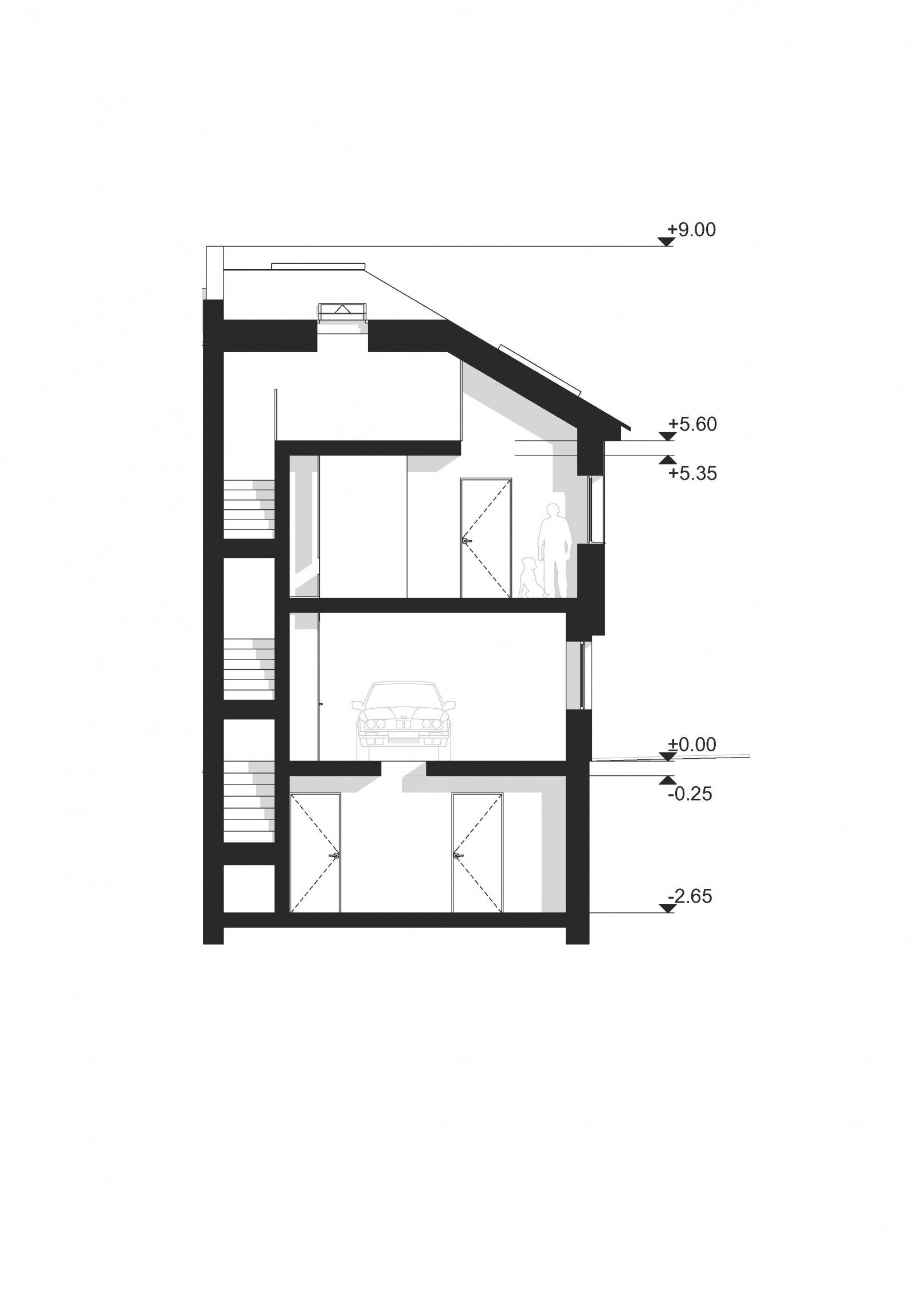
Komplikuotoje Purvynės gatvės “garažiukų” aplinkoje, Nidoje, jaunai šeimai projektuojamas vasaros būstas. Esamo garažo rekonstrukcija numato dviejų aukštų pastatą su mansarda, kuris yra sublokuotų garažų išklotinės kampinė dalis. Išorės sienų apdaila, naudojant tinką ir medines lentas, palaikant Neringos savivaldybės 1998 08 12 sprendimu patvirtintus detaliojo plano sprendinius, išlaikomas esamų pastatų išklotinės vientisumas. Rūsyje planuojamos garažo reikmenų patalpos, pirmame aukšte – esamas garažas, antrame aukšte ir mansardoje – buitinės patalpos, kurios vasarą bus naudojamos kaip poilsio erdvės. Pastato aukštis parenkamas pagal bendrą fasadų išklotinę, atsižvelgiant į esamą kontekstą. Pirmu žingsniu šiame projekte žengia funkcija, minimalizmas tiek išorės tiek vidaus formose ir medžiagose, patalpų aprūpinimas natūraliu apšvietimu.