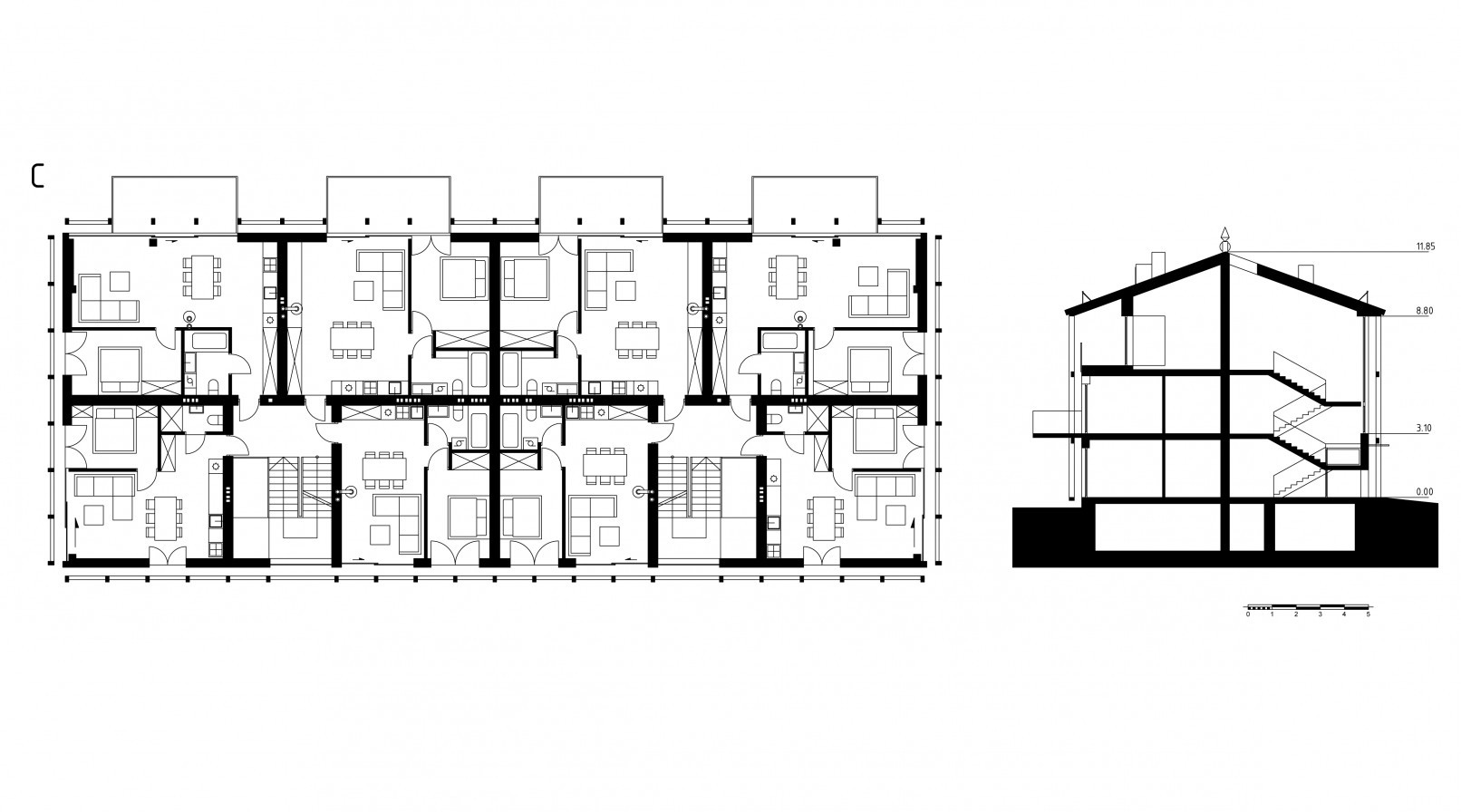
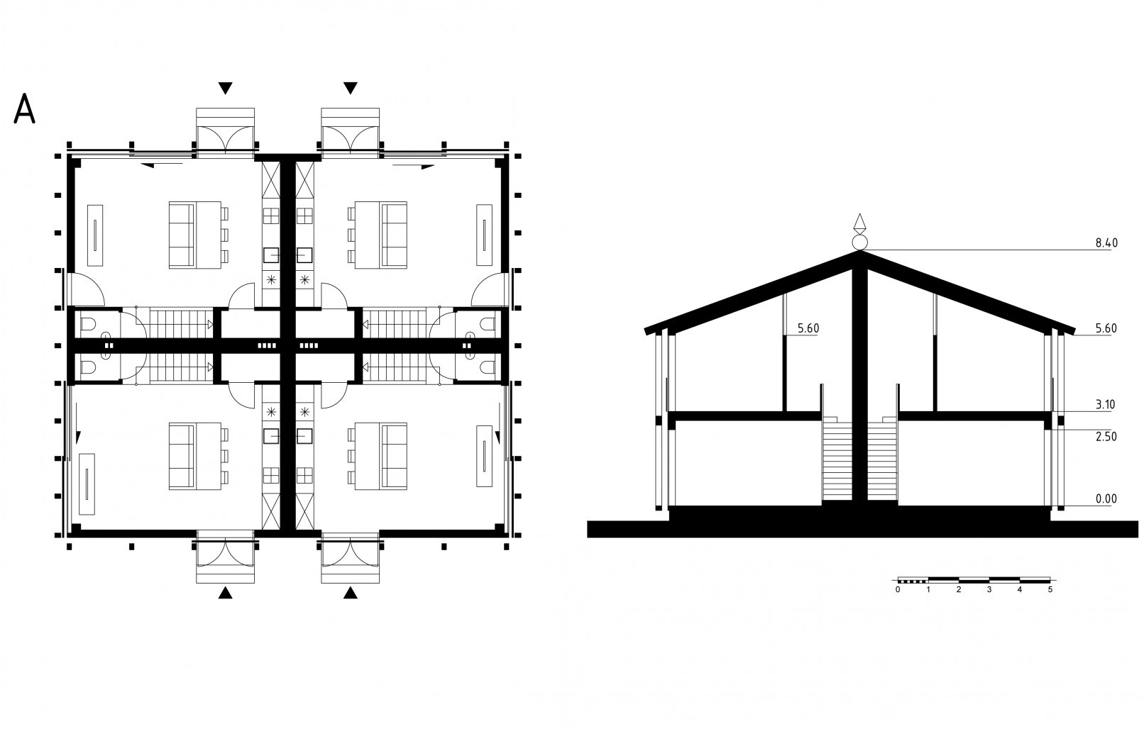
Žaliasis kelias

Architektai:
A. Šablevičius, D. Čipkus, P. Vitkauskas, M. Mickevičius.

Metai:
Projektavimas 2014
Statyba 2015-2016

Plotas:
2812 m2

Vieta:
Žaliasis kelias Nr.8, Neringa

Tipas:
Realizacija

Užsakovas:
UAB “Andojus”

Apie projektą:
Turinti įdomią patirtį, tačiau laikui bėgant fiziškai bei estetiškai apleista teritorija atsinaujina, užleisdama vietą naujam pastatų kompleksui. Kažkada buvusio sovietinio dalinio bei Olimpinių rinktinių centro sklype suprojektuoti poilsio namai, kuriantys prabangių vilų įvaizdį, orientuoti lygiagrečiai Žaliajam keliui Juodkrantėje.