H

10Architektai:
A. Šablevičius, M. Mickevičius

Metai:
Projektavimas 2016
Statyba 2017

Plotas:
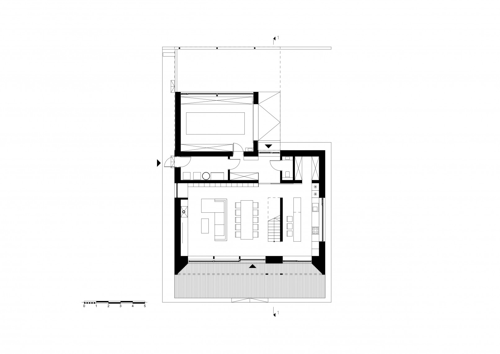
Gyvenamasis 117m2
Bendras 195m2

Vieta:
Pylimėlių g., Vilnius

Tipas:
Realizacija

Užsakovas:
Privatus

Nuotraukų autorė:
Vaida Čipkė

Apie projektą:
Jau ankstyvojoje kūrybos stadijoje namo architektūrą kodavo poreikis saulės baterijoms. Tai lėmė stogo kampus, pastato orientaciją sklype. Pagrindinis fasadas atsisuko į pietus, erdvią pievą su terasa. Projektuojamas pastatas prisitaikė prie sklypo situacijos, kuomet gyvenamąja erdve dalinasi kelios kartos: įgilinta ūkinė dalis neužstoja vaizdų greta esančiam namui ir tūriškai nuo jo atsitraukia.