Sandėliavimo paskirties pastatai
Architektai:
Adomas Šablevičius, Eglė Žemaitytė, Eglė Buikaitė, Polina Kalugina
Metai:
Realizacija 2015 – 2025
Projektų plotas:
175 m2 – 2200 m2
Vieta:
Lietuva
Tipas:
Realizacija
Apie projektus:
Projektuojame ir pramonės sandėliavimo paskirties objektus: didelių ir mažų erdvių gamyklas, servisus, logistikos bei sandėliavimo pastatus.
Gelžbetonio ir metalo pagrindinės konstrukcijos su įvairiomis fasadų apdailomis.
Sandėliavimo paskirties pastatas
Bendras plotas: 1032 m2
Vieta: Vilniaus m.
PIRMO AUKŠTO PLANAS
FASADAI 11-1 IR 1-11
PJŪVIS 1-1
Sandėliavimo paskirties pastatas
Bendras plotas: 391 m2
Vieta: Vilniaus m.
PIRMO AUKŠTO PLANAS
FASADAI
PJŪVIS 1-1
Sandėliavimo/gamybos paskirties pastatas
Bendras plotas: 2143 m2
Vieta: Vilniaus m.
FASADAI
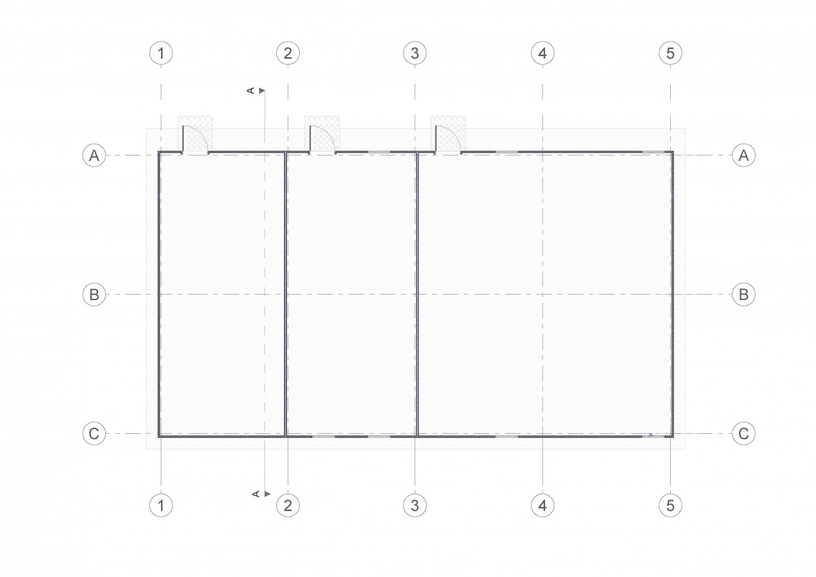
Sandėliavimo paskirties pastatas
Bendras plotas: 175 m2
Vieta: Vilniaus m.
PIRMO AUKŠTO PLANAS
FASADAS 5-1